Villa singola in vendita

Pecetto Torinese, Strada della Vetta
€ 698.000
8 locali 8 locali
345 Mq 345 Mq
3 bagni 3 bagni

Villa singola in vendita

Pecetto Torinese, Strada della Vetta

Descrizione annuncio

In posizione collinare riservata e panoramica, a soli 10 minuti dalla Gran Madre di Torino, villa indipendente di rara eleganza, immersa in un contesto naturale di assoluta tranquillità.

La proprietà, completamente ristrutturata nel 2020 con finiture di pregio e impianti aggiornati, si sviluppa su due livelli principali collegati da scala interna.
L’ingresso avviene da un ampio portico terrazzato con splendida vista panoramica sulle colline circostanti, raggiungibile tramite scala in pietra che attraversa il cortile privato.

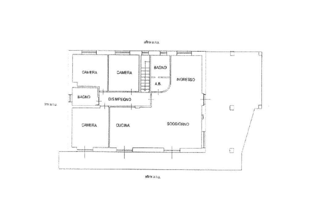
Il piano abitativo principale, situato al livello superiore, accoglie un luminoso salone doppio con cucina a vista e zona relax, perfettamente integrati in un ambiente accogliente e curato. Un disimpegno conduce alla zona notte composta da tre camere da letto e doppi servizi finestrati, tutti completamente ristrutturati.

Il piano terreno, finestrato e anch’esso oggetto di ristrutturazione, ospita una seconda unità abitativa composta da salone doppio con cucina, due camere da letto e bagno: uno spazio ideale come dependance, zona ospiti o abitazione per un secondo nucleo familiare.

Completano la proprietà un box auto di circa 30 mq e una generosa area esterna privata di circa 1.500 mq, suddivisa tra cortile pavimentato e giardino verde, perfetta per godere della vita all’aria aperta in un contesto collinare esclusivo.

Una proposta versatile, adatta sia come villa unifamiliare che come soluzione bifamiliare, ideale per chi cerca indipendenza, comfort e vista mozzafiato a pochi minuti da Torino.

Mostra tutto

Nelle vicinanze

Trasporto pubblico Trasporto pubblico
Trasporto pubblico
580 m
Mainero Capolinea
Mainero Capolinea
990 m
Scuole Scuole
Scuola Primaria Massimo D'Azeglio
1,6 Km
Arduino - sezione ospedaliera
2,0 Km
Scuole
2,1 Km
il cucciolo
2,5 Km
Scuola Elementare "Domenico Folis"
2,9 Km
Farmacia Farmacia
Farmacia San Martino
1,6 Km
Farmacia
2,0 Km
Ospedali Ospedali
Residenza Eremo dei Camaldolesi
610 m
Negozi Negozi
Sottil Market
2,7 Km
Bar Bar
La Maddalena
1,0 Km
Ristoranti Ristoranti
Il Bric
1,1 Km
Il Bastian Contrario
2,1 Km
Pizzeria La Panoramica
2,6 Km
Pizzeria Pinocchio
2,7 Km
La Vignassa
2,9 Km
Mostra tutto

Caratteristiche

Rif.:
61153376
Piano:
Su più livelli di 1
Totale piani:
1
Box:
1
Posti auto:
2
Terrazzi:
1
Mostra tutto
Prezzo Prezzo
€ 698.000
Rata mutuo Rata mutuo
€ 3.243 / mese
Spese annue Spese annue
€ 0
Proponi il tuo prezzoProponi il tuo prezzo

Classe Energetica

C
C
C
C
C
C
C
C
C
EP globale non rinnovabile:
119.99 kW h/m² anno
EP globale rinnovabile:
0.99 kW h/m² anno
EP invernale del fabbricato:
EP estiva del fabbricato:
Anno di costruzione:
1975
Riscaldamento:
Autonomo
Tipo impianto:
A radiatori
Tipo alimentazione:
Altro

Ti interessa visionare l'immobile?

Fissa un appuntamento  Fissa un appuntamento

Richiedi informazioni

Clicca su Leggi per aprire l'informativa
* Questi campi sono obbligatori

Calcola il tuo mutuo

Semplice e senza impegno
Anticipo

( % )
Mutuo

( % )

pochi semplici passi

inserisci i tuoi dati
Questionario completato
Grazie per aver richiesto un appuntamento senza impegno con un nostro Consulente del Credito e Assicurativo.

Hai inserito correttamente tutti i dati necessari e a breve riceverai una e-mail con un link da convalidare per inviare i tuoi dati.
Affiliato
Studio Pecetto Sas
Via Umberto I, 38/D 10020 Pecetto Torinese (TO)

Il nostro staff


  • Roberto Giusto
    Affiliato

  • Alessio Battaglia
    Collaboratore

  • Marco De Filippi
    Collaboratore

  • Flavia Vittoria Tutuianu
    Coordinatrice
Via Umberto I, 38/D 10020 Pecetto Torinese (TO)
Zona: Pecetto – Revigliasco – Testona – Moriondo – Palera - Bauducchi
Mostra su mappa
Orari: dal lunedì al venerdì 09:00-12:30; 15:00-20:00; sabato 09:00-12.30; domenica su appuntamento.
Affiliato
Studio Pecetto Sas
Via Umberto I, 38/D 10020 Pecetto Torinese (TO)

2026 Tecnocasa Franchising S.p.A. - P. IVA 08365160152 - Via Monte Bianco 60/A 20089 Rozzano (MI). Ogni agenzia ha un proprio titolare ed è autonoma. Privacy policy | Policy utilizzo | Cookie policy