Porzione di bifamiliare in vendita

Moncalieri, Strada Rivamare - Testona
€ 320.000
4 locali 4 locali
120 Mq 120 Mq
1 bagno 1 bagno

Porzione di bifamiliare in vendita

Moncalieri, Strada Rivamare - Testona

Descrizione annuncio

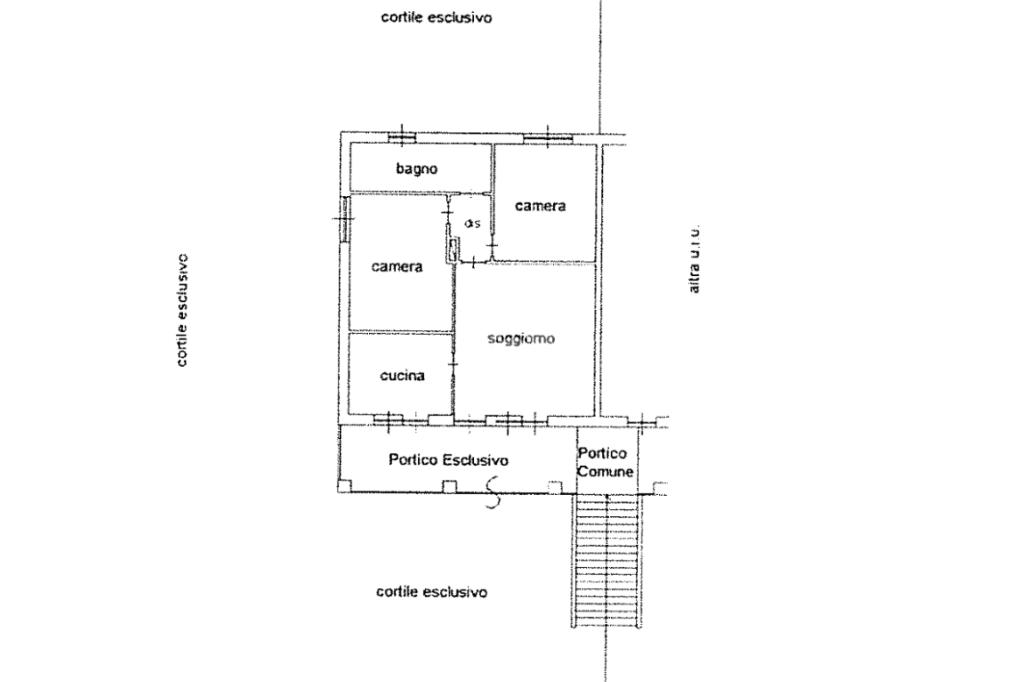
Testona, in posizione strategica ma immersa nella tranquillità del precollina, porzione di villa bifamiliare con ampi spazi aggiuntivi privati.

L’accesso alla proprietà avviene tramite scala esterna che conduce al terrazzo porticato: un ambiente elegante e riservato, ideale per momenti di relax all’aperto e valorizzato da una piacevole vista panoramica sulle colline.

L’ingresso si apre su una luminosa zona giorno composta da soggiorno e cucina abitabile, entrambi con accesso diretto al portico esterno. La zona notte ospita due camere da letto matrimoniali ed il bagno recentemente ristrutturato, finestrato con doccia, ben rifinito e funzionale.

Al piano seminterrato, con accesso esterno indipendente, trovano spazio la cantina, un vano tecnico e l'ampio box auto di circa 60 mq, ideale per più veicoli o come spazio multifunzionale.

A completare la proprietà il giardino privato posizionato sul lato retrostante per garantine massima privacy.

Mostra tutto

Nelle vicinanze

Trasporto pubblico Trasporto pubblico
Trofarello
Trofarello
2,2 Km
Revigliasco N.150
Revigliasco N.150
270 m
Revigliasco N.143
Revigliasco N.143
280 m
Ricariche auto elettriche Ricariche auto elettriche
Trofarello Resistenza | EnelX
2,0 Km
Trofarello Battisti | EnelX
2,2 Km
Trofarello Stazione | EnelX
2,2 Km
Tesla Supercharger Moncalieri - Tulip Inn Turin South Hotel
3,0 Km
Scuole Scuole
Scuola primaria “Giovanni Pascoli”
1,5 Km
IIS Liceo Ettore Majorana
2,0 Km
Istituto Comprensivo Nasi
2,1 Km
Scuola Primaria Massimo D'Azeglio
2,3 Km
Scuola Secondaria I grado Giacomo Leopardi
2,4 Km
Farmacia Farmacia
Farmacia
1,5 Km
Farmacia Moriondo
1,7 Km
Farmacia Trisoglio
2,0 Km
Farmacia San Martino
2,2 Km
Farmacia Parizia
2,7 Km
Ospedali Ospedali
Ospedale Santa Croce
2,9 Km
Supermercati Supermercati
Absolute Store - Calcio e materiale sportivo
2,1 Km
Supermercati
2,3 Km
Non Solo Materassi
2,3 Km
Porte di Moncalieri
2,5 Km
Carrefour
2,6 Km
Negozi Negozi
Dico
1,2 Km
CRAI
2,1 Km
OVS
2,4 Km
Facit
2,7 Km
Zeta
3,0 Km
Bar Bar
Bar Liceo
2,1 Km
Bar Roma
2,2 Km
Hermitage Bistrot
2,4 Km
Bar
3,0 Km
Facis
3,0 Km
Ristoranti Ristoranti
Ca' Mia
350 m
L'Elefante Bianco
550 m
Birreria Winchester
1,6 Km
Agriturismo Frutti Rossi
1,7 Km
Pizzeria Vesuvio
2,8 Km
Mostra tutto

Caratteristiche

Rif.:
61192997
Piano:
1 di 1 (Piano basso)
Box:
1
Terrazzi:
1
Camere da letto:
2
Arredamento:
Assente
Mostra tutto
Prezzo Prezzo
€ 320.000
Rata mutuo Rata mutuo
€ 1.508 / mese
Spese annue Spese annue
€ 0
Proponi il tuo prezzoProponi il tuo prezzo

Classe Energetica

F
F
F
F
F
F
F
F
F
EP globale non rinnovabile:
229.19 kW h/m² anno
EP globale rinnovabile:
0.29 kW h/m² anno
EP invernale del fabbricato:
EP estiva del fabbricato:
Anno di costruzione:
1970
Riscaldamento:
Autonomo
Tipo impianto:
A radiatori
Tipo alimentazione:
Metano

Ti interessa visionare l'immobile?

Fissa un appuntamento  Fissa un appuntamento

Richiedi informazioni

Clicca su Leggi per aprire l'informativa
* Questi campi sono obbligatori

Calcola il tuo mutuo

Semplice e senza impegno
Anticipo

( % )
Mutuo

( % )

pochi semplici passi

inserisci i tuoi dati
Questionario completato
Grazie per aver richiesto un appuntamento senza impegno con un nostro Consulente del Credito e Assicurativo.

Hai inserito correttamente tutti i dati necessari e a breve riceverai una e-mail con un link da convalidare per inviare i tuoi dati.
Affiliato
Studio Pecetto Sas
Via Umberto I, 38/D 10020 Pecetto Torinese (TO)

Il nostro staff


  • Roberto Giusto
    Affiliato

  • Alessio Battaglia
    Collaboratore

  • Marco De Filippi
    Collaboratore

  • Flavia Vittoria Tutuianu
    Coordinatrice
Via Umberto I, 38/D 10020 Pecetto Torinese (TO)
Zona: Pecetto – Revigliasco – Testona – Moriondo – Palera - Bauducchi
Mostra su mappa
Orari: dal lunedì al venerdì 09:00-12:30; 15:00-20:00; sabato 09:00-12.30; domenica su appuntamento.
Affiliato
Studio Pecetto Sas
Via Umberto I, 38/D 10020 Pecetto Torinese (TO)

2026 Tecnocasa Franchising S.p.A. - P. IVA 08365160152 - Via Monte Bianco 60/A 20089 Rozzano (MI). Ogni agenzia ha un proprio titolare ed è autonoma. Privacy policy | Policy utilizzo | Cookie policy