Porzione di bifamiliare in vendita

Moncalieri, Strada Maddalena - Revigliasco
€ 375.000
8 locali 8 locali
250 Mq 250 Mq
3 bagni 3 bagni

Porzione di bifamiliare in vendita

Moncalieri, Strada Maddalena - Revigliasco

Descrizione annuncio

Revigliasco, situata nella prestigiosa cornice collinare moncalierese all’interno di un contesto residenziale riservato ed estremamente curato, porzione di villa finemente ristrutturata che coniuga eleganza, comfort e qualità degli spazi.

L’accesso alla proprietà avviene attraverso il cancelletto pedonale privato che introduce all’armonioso giardino esclusivo: un angolo verde ideale per momenti di relax, perfettamente integrato con l’ingresso dell’abitazione. Il portoncino blindato apre sull’ampia zona living, impreziosita dal camino e dal terrazzo che dona luminosità naturale e un senso di continuità con l’esterno. La cucina è separata, abitabile e funzionale. Sullo stesso piano si trovano inoltre un bagno finestrato con doccia e una stanza versatile, attualmente adibita a studio.

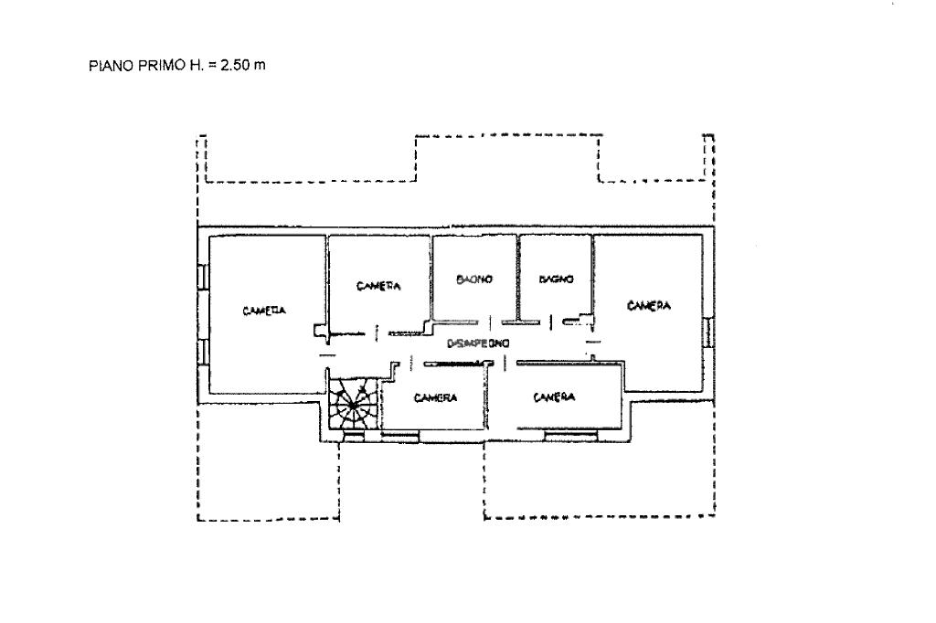
Al piano superiore, collegato da elegante scala interna, si sviluppa la zona notte: un disimpegno ben distribuito conduce alle cinque camere da letto, spaziose e luminose e ai due bagni, entrambi finestrati, di cui uno dotato di vasca angolare.

Il riscaldamento è autonomo a metano con caldaia di ultima generazione, il tutto assicura indipendenza e ottimale regolazione termica, gestibile anche da remoto. Gli infissi sono tutti in legno con doppio vetro e zanzariere integrate.

Sono inoltre presenti tre locali sottotetto, attualmente adibiti a comodi ripostigli.

A completare la proprietà la cantina e il comodo box auto doppio di circa 30 mq.

Mostra tutto

Nelle vicinanze

Trasporto pubblico Trasporto pubblico
Cadibona
Cadibona
110 m
Moncalvo
Moncalvo
180 m
Scuole Scuole
Arduino - sezione ospedaliera
940 m
Scuola Primaria Massimo D'Azeglio
1,7 Km
Scuola elementare Balbis Garrone
2,2 Km
Istituto Tecnico Commerciale "Antonio Marro"
2,7 Km
il cucciolo
2,7 Km
Farmacia Farmacia
Farmacia San Martino
1,8 Km
Farmacia Cavoretto
2,2 Km
Farmacia
2,8 Km
Farmacia Pilonetto S.A.S.
3,0 Km
Ospedali Ospedali
Residenza Eremo dei Camaldolesi
2,4 Km
Negozi Negozi
Negozi
2,2 Km
Alimentari Cavoretto
2,2 Km
Panetteria
2,9 Km
Bar Bar
La Maddalena
920 m
Caffè del Parco
2,4 Km
Ristoranti Ristoranti
Il Bastian Contrario
230 m
Il Bric
860 m
Villa Somis
1,8 Km
La Boccio
1,9 Km
Tromlin
2,2 Km
Mostra tutto

Caratteristiche

Rif.:
61153473
Piano:
Su più livelli di 3
Totale piani:
3
Box:
1
Terrazzi:
1
Camere da letto:
6
Mostra tutto
Prezzo Prezzo
€ 375.000
Rata mutuo Rata mutuo
€ 1.742 / mese
Spese annue Spese annue
€ 0
Proponi il tuo prezzoProponi il tuo prezzo

Classe Energetica

D
D
D
D
D
D
D
D
D
EP globale non rinnovabile:
106.42 kW h/m² anno
EP globale rinnovabile:
1.80 kW h/m² anno
EP invernale del fabbricato:
EP estiva del fabbricato:
Anno di costruzione:
1990
Riscaldamento:
Autonomo
Tipo impianto:
A radiatori
Tipo alimentazione:
Metano

Ti interessa visionare l'immobile?

Fissa un appuntamento  Fissa un appuntamento

Richiedi informazioni

Clicca su Leggi per aprire l'informativa
* Questi campi sono obbligatori

Calcola il tuo mutuo

Semplice e senza impegno
Anticipo

( % )
Mutuo

( % )

pochi semplici passi

inserisci i tuoi dati
Questionario completato
Grazie per aver richiesto un appuntamento senza impegno con un nostro Consulente del Credito e Assicurativo.

Hai inserito correttamente tutti i dati necessari e a breve riceverai una e-mail con un link da convalidare per inviare i tuoi dati.
Affiliato
Studio Pecetto Sas
Via Umberto I, 38/D 10020 Pecetto Torinese (TO)

Il nostro staff


  • Roberto Giusto
    Affiliato

  • Alessio Battaglia
    Collaboratore

  • Marco De Filippi
    Collaboratore

  • Flavia Vittoria Tutuianu
    Coordinatrice
Via Umberto I, 38/D 10020 Pecetto Torinese (TO)
Zona: Pecetto – Revigliasco – Testona – Moriondo – Palera - Bauducchi
Mostra su mappa
Orari: dal lunedì al venerdì 09:00-12:30; 15:00-20:00; sabato 09:00-12.30; domenica su appuntamento.
Affiliato
Studio Pecetto Sas
Via Umberto I, 38/D 10020 Pecetto Torinese (TO)

2026 Tecnocasa Franchising S.p.A. - P. IVA 08365160152 - Via Monte Bianco 60/A 20089 Rozzano (MI). Ogni agenzia ha un proprio titolare ed è autonoma. Privacy policy | Policy utilizzo | Cookie policy